LUMINOSO PLURILOCALE ZONA P. TA VENENZIA / REPUBBLICA

LUMINOSO PLURILOCALE ZONA P. TA VENENZIA / REPUBBLICA

Viale Tunisia, 24, 20124 Milano MI, Italia

For Sale, Vendita

€990.000

  • 9
  • 3
  • 5
  • 11
  • 6
  • 7
  • 8
  • 12
  • 15
  • 2
  • 14
  • 1
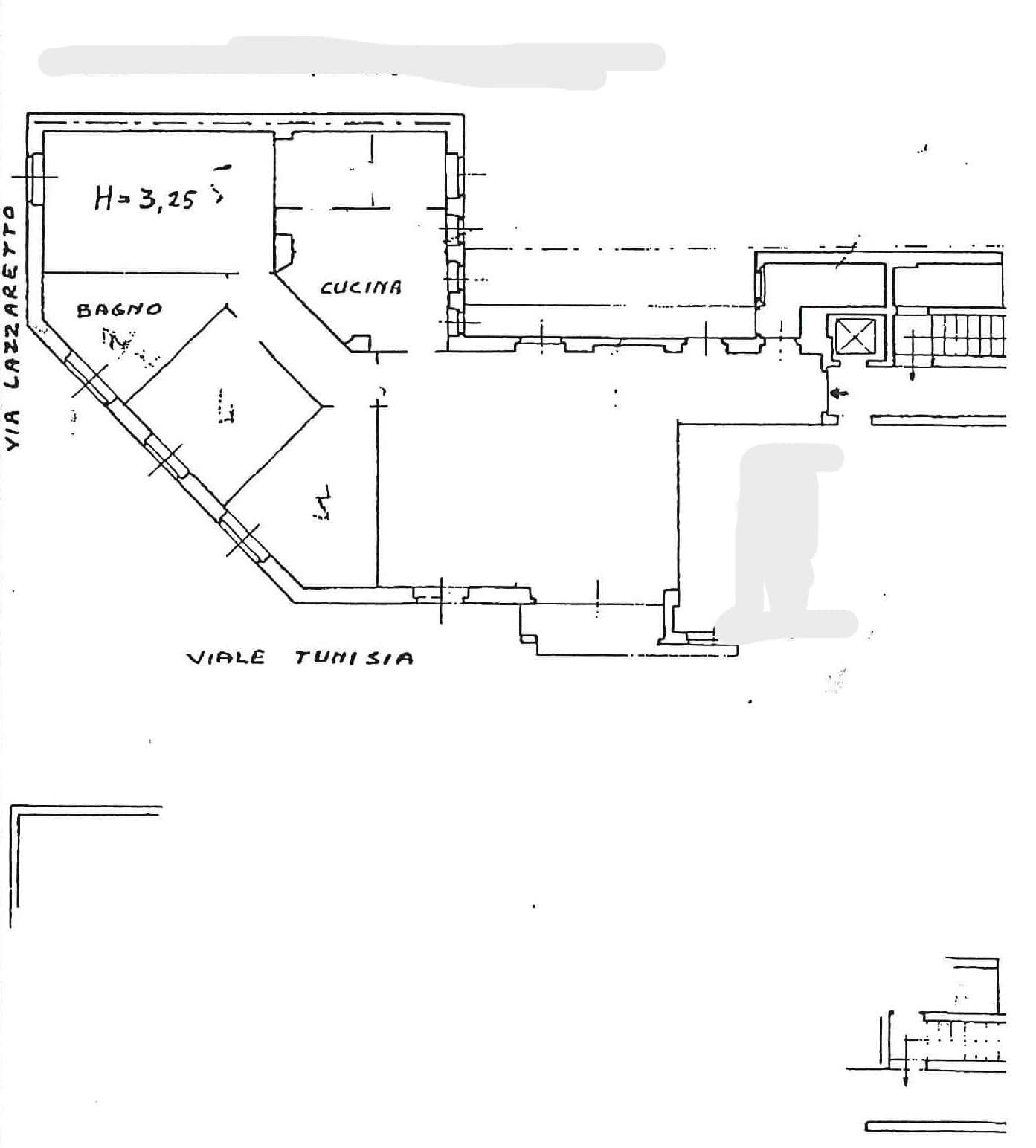
  • PLANIMETRIA AGGIORNATA

Codice proprietà :

 8703M

Condividi

Stampa

Camere

3

Bagni

2

Area

172 m2

Anno di costruzione

1960

Descrizione

LUMINOSO PLURILOCALE ZONA P. TA VENENZIA / REPUBBLICA

LIBERO AL ROGITO

Viale Tunisia. In una delle zone più rinomate della città, nelle vicinanze della fermata della linea metropolitana Linea Gialla e passante fermata M3 REPUBBLICA e linea verde M2 fermata Stazione Centrale, a brevissima distanza dal rinomato Corso Buenos Aires, la zona offre ottimi collegamenti con mezzi di superficie quali tram numero 1, 5, 33. E’ possibile può raggiungere a piedi e con i mezzi sia la fermata LIMA M1, sia la fermata M3 TURATI.
Zona ricca di qualsiasi tipo di servizio: scuole private e pubbliche, negozi, bar, ristoranti, farmacie, notturne e diurne, benzinai, banche ed uffici pubblici (poste e caf)
Proponiamo in vendita, in uno stabile signorile ben tenuto degli anni ’60 con servizio di portineria e due ascensori, un plurilocale di mq 172 composto da: ampio ingresso, salone doppio, cucina abitabile, disimpegno, tre ampie camere da letto, due bagni (uno con vasca e l’altro con doccia) e ripostiglio.

Situato al 5° piano, l’immobile gode della presenza di due balconi ed ha una tripla esposizione che lo rende molto luminoso e silenzioso in tutte le ore del giorno.
A completare la soluzione è la presenza di un solaio.

Richiesta Euro 990.000, 00 oltre Euro 7.000, 00 di spese condominiali annue comprensive di riscaldamento centralizzato.

Classe energetica E ipe 200,05 Kwh.

RIFERIMENTO AGENZIA 8703M

Proprietà Simili